
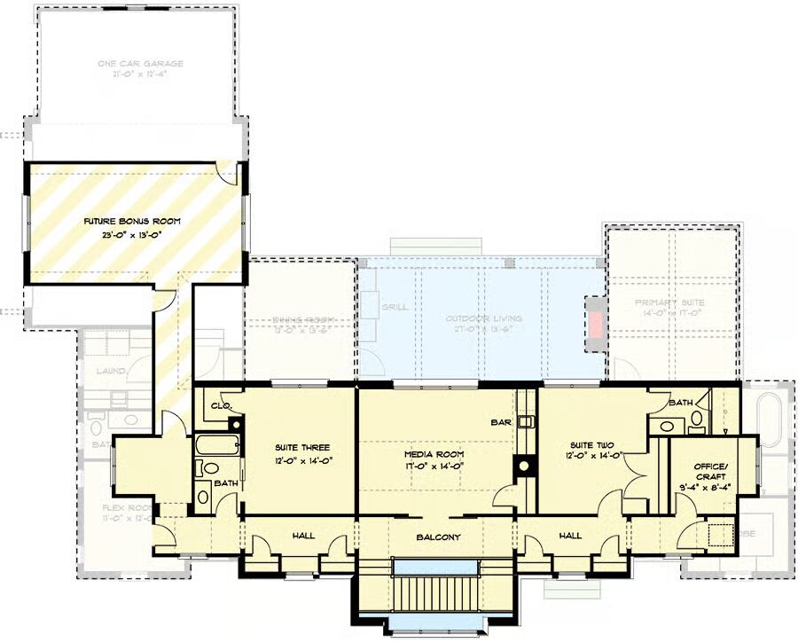
Specifications
- Area: 3,448 sq. ft.
- Bedrooms: 3-4
- Bathrooms: 4.5
- Stories: 2
- Garages: 3
Welcome to the gallery of photos for Transitional New American House with Outdoor Kitchen and Fireplace – 3448 Sq Ft. The floor plans are shown below:








This Transitional New American house plan offers 3,448 square feet of beautifully designed living space, featuring 4 bedrooms, 4.5 bathrooms, and an 824-square-foot, side-entry 3-car garage positioned conveniently at the rear-left of the home.
Blending classic charm with modern sophistication, this design emphasizes open, light-filled spaces and seamless indoor-outdoor flow.
Perfect for families or those who love to entertain, this home combines elegant architectural details with everyday functionality—creating a residence that’s as comfortable as it is timeless.
You May Also Like
4-Bedroom Rustic Cottage Style Home with Main Floor Master (Floor Plans)
Modern Farmhouse with Bonus Room and Optional Lower Level (Floor Plans)
Garage Apartment with 1 Bedroom, 2-Car Garage and Laundry Room Upstairs (Floor Plans)
Modern 2-Story House with Home Office and 2-Story Great Room - 3315 Sq Ft (Floor Plans)
Contemporary Country Barn Dream Home (Floor Plans)
Double-Story, 5-Bedroom Traditional House With 3-Car Garage & 2 Home Offices (Floor Plans)
Single-Story, 4-Bedroom Barndominium with Walkout Basement (Floor Plans)
3-Bedroom Craftsman House with 2-Car garage - 1656 Sq Ft (Floor Plans)
Double-Story, 3-Bedroom Modern Cabin with Window-Filled Rear (Floor Plan)
Single-Story, 2-Bedroom Timeless Tuscan With Courtyard (Floor Plans)
Split Bedroom Craftsman House (Floor Plans)
4-Bedroom The Irwin: Traditional House (Floor Plans)
Contemporary Ranch with 10' Ceilings (Floor Plans)
Single-Story, 3-Bedroom Storybook Bungalow With Large Front & Back Porches (Floor Plan)
1,662 Square Foot Expandable Ranch House (Floor Plans)
Double-Story, 4-Bedroom Mountain Retreat Home With Detached 2-Car Garage (Floor Plans)
Spacious Craftsman Home with In-Law Suite and Optional Theater (Floor Plans)
Single-Story, 3-Bedroom Dos Riatas Ranch Metal Framed Barndominium Farmhouse (Floor Plan)
Single-Story, 3-Bedroom The Lujack: Traditional Family Home (Floor Plans)
Deluxe Barndominium with 2-Story Living Room (Floor Plans)
Single-Story Exclusive Mountain Home (Floor Plans)
3-Bedroom Southern Trace Ranch Style House (Floor Plans)
2-Bedroom Symmetrical Country Farmhouse ADU with Oversized Garage (Floor Plans)
3-Bedroom Traditional House with Dual Laundry Under 2000 Sq Ft (Floor Plans)
4-Bedroom Transitional New American House with Outdoor Kitchen - 3496 Sq Ft (Floor Plans)
Single-Story, 3-Bedroom The Treyburn: Striking Gables (Floor Plans)
Single-Story, 3-Bedroom Country Cottage Starter Home (Floor Plans)
4-Bedroom, Luxurious Mediterranean Beach Home with Private Master Suite (Floor Plans)
Single-Story, 3-Bedroom Cumberland House Cottage C With 2-Car Garage (Floor Plan)
Townhome with Apartment Above Garage (Floor Plans)
Single-Story, 3-Bedroom The Champlain (Floor Plan)
Ranch Home with 3-Beds on Main Level and Optional 3-Bed ADU on Lower Level (Floor Plans)
Single-Story, 3-Bedroom The Riverpointe Craftsman House With 2 Bathrooms & Car Garage (Floor Plans)
Modern Farmhouse Detached Garage with Pull-down Stairs (Floor Plans)
Craftsman Carriage House with 1-Bedroom Apartment (Floor Plans)
4-Bedroom Modern Scandinavian-Inspired House Under 2100 Square Feet (Floor Plans)