
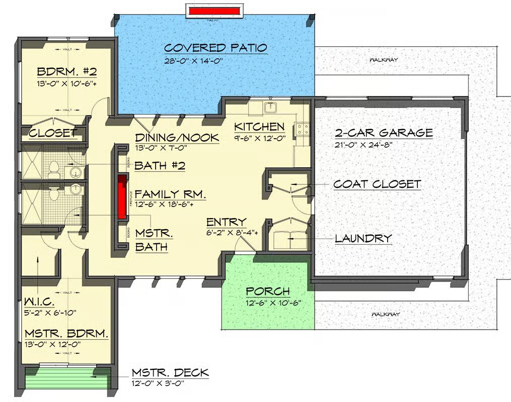
Specifications
- Area: 1,275 sq. ft.
- Bedrooms: 2
- Bathrooms: 2
- Stories: 1
- Garages: 2
Welcome to the gallery of photos for Scandinavian-Style Ranch with Outdoor Fireplace – 1275 Sq Ft. The floor plans are shown below:









This Scandinavian-inspired home plan delivers clean lines, functional design, and modern comfort with 1,275 square feet of heated living space. Offering 2 bedrooms and 2 bathrooms, the thoughtfully planned layout maximizes efficiency while maintaining a warm, inviting atmosphere.
A 2-car side-entry garage (554 sq. ft.) provides ample parking and storage, perfectly complementing this stylish yet practical design.
You May Also Like
5-Bedroom One-Story Home with 3-Car Garage and 10 Ceilings (Floor Plans)
House Under 2,800 Square Feet with a Vaulted Great Room and Bonus Expansion (Floor Plans)
3-Bedroom Exclusive Mountain Beauty (Floor Plans)
4-Bedroom The Trinity: Traditional home (Floor Plans)
3-Bedroom The Tanner: Split Bedroom Ranch (Floor Plans)
Lake House With 2nd-Floor Master Suite - 2003 Sq Ft (Floor Plans)
Double-Story, 2-Bedroom Barn Style Home with Bonus Room (Floor Plans)
Single-Story, 3-Bedroom Transitional House with Courtyard and Covered Porch (Floor Plans)
1-Story, 3-Bedroom Chandler 2 House (Floor Plan)
Single-Story, 3-Bedroom Barndominium-Style House With Cathedral Ceiling & Exposed Beams (Floor Plan)
Single-Story, 3-Bedroom Rustic Ranch Home With Cathedral Ceilings And A Broad Front Porch (Floor Pla...
2-Bedroom Mountain House with Study and Optional Lower-level Office (Floor Plans)
3-Bedroom Ultra-modern House with Pull-through 2-car Garage (Floor Plans)
Single-Story, 3-Bedroom The Oliver Rustic Craftsman Home With 2-Car Garage (Floor Plans)
Double-Story, 2-Bedroom Barndominium with Drive-thru Garage (Floor Plan)
4-Bedroom Well-Balanced Modern Farmhouse Under 3,000 Square Feet (Floor Plans)
3-Bedroom Elegant Florida House (Floor Plans)
Modern Farmhouse with Home Office and Optional Lower Level (Floor Plans)
2-Bedroom Barn-style Garage Apartment with Office and 3 Actual Stalls (Floor Plans)
2-Bedroom 2776-4392 Sq Ft Traditional with Open Floor (Floor Plans)
Rustic 2-Story Tiny Home with Optional 1-Car Garage (Floor Plans)
Backyard Bar Cottage Shed With Patio & Loft Covered In Cathedral Ceiling (Floor Plans)
New American House with Open and Airy Floor (Floor Plans)
3-Bedroom Barndominium House with 2-Story Great Room - 1820 Sq Ft (Floor Plans)
Double-Story, 4-Bedroom Meadow Ridge House (Floor Plan)
Storybook House with Open Floor (Floor Plans)
1-Bedroom Studio Guest Cottage (Floor Plans)
2-Bedroom 15-Foot-Wide Home (Floor Plans)
2-Bedroom 2,127 Sq. Ft. Craftsman House with Nook/Breakfast Area (Floor Plans)
3-Bedroom Modern Farmhouse with Formal Dining and Jack and Jill Bath - 2305 Sq Ft (Floor Plans)
Double-Story Coastal House With Wide Outdoor Living Space (Floor Plans)
3-Bedroom Contemporary Mission-Inspired House With Game Room Upstairs (Floor Plans)
3-Bedroom Mountain Craftsman with Great Room and 3-Car Angled Garage - 2803 Sq Ft (Floor Plans)
Modern Colonial House with 3rd Floor Flex Room (Floor Plans)
Single-Story, 3-Bedroom Rustic Country Craftsman House Under 2,300 Square Feet (Floor Plans)
2-Bedroom Exclusive Micro Modern House Open Floor (Floor Plans)