
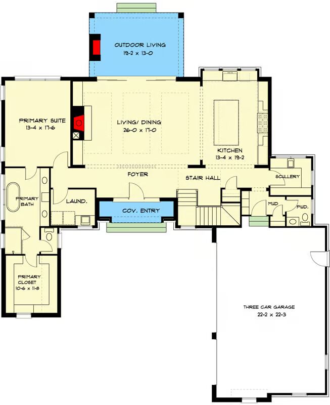
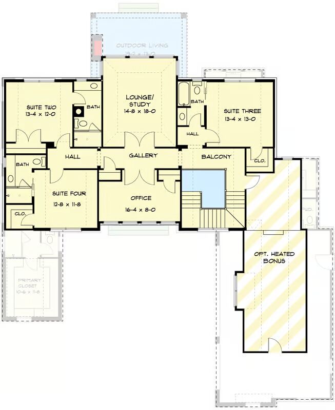
Specifications
- Area: 3,358 sq. ft.
- Bedrooms: 4
- Bathrooms: 4.5
- Stories: 2
- Garages: 3
Welcome to the gallery of photos for Contemporary Transitional Home with Outdoor Fireplace – 3358 Sq Ft. The floor plans are shown below:







This contemporary transitional home showcases 3,358 square feet of refined living space, featuring 4 bedrooms, 4.5 bathrooms, and an 815-square-foot 3-car garage.
Designed with a perfect balance of modern elegance and timeless appeal, this plan offers an open-concept layout, luxurious bedroom suites, and thoughtfully designed gathering spaces ideal for entertaining or everyday living.
Clean architectural lines, expansive windows, and high-end finishes complete the look, making this home a sophisticated retreat for modern living.
You May Also Like
Single-Story, 2-Bedroom 1,292 Sq. Ft. Bungalow (Floor Plans)
Single-Story Ranch Home For Mountain Or Lake-View Lot With 3-Car Garage (Floor Plans)
Compact House with Home Office and Bathroom Options (Floor Plans)
Rockin' Mountain Home with Climbing and Exercise Rooms (Floor Plans)
3-Bedroom Cottage House 2-Story Living Room (Floor Plans)
4-Bedroom French Country House with Open Floor (Floor Plans)
Single-Story, 3-Bedroom Painted Brick Modern Farmhouse: The Silverbrook (Floor Plans)
Single-Story, 3-Bedroom Montana Cabin B (Floor Plans)
Single-Story, 3-Bedroom House With 2 Bathrooms & Options For Basement Or Garage (Floor Plans)
3-Bedroom Williamsburg Affordable Farmhouse Style House (Floor Plans)
Single-Story, 3-Bedroom Modern Farmhouse (Floor Plans)
Single-Story, 3-Bedroom Compact Contemporary House With 2 Bathrooms & 2-Car Garage (Floor Plan)
Luxury Southern Ranch with Plenty of Outdoor Living (Floor Plans)
Perfectly Balanced 4-Bed Modern Farmhouse (Floor Plan)
4-Bedroom Striking Curb Appeal (Floor Plans)
Double-Story, 5-Bedroom Brockton Hall (Floor Plans)
2-Bedroom Stylish House with Spacious Deck and Balcony (Floor Plans)
Single-Story, 4-Bedroom Ranch Style Farmhouse House with Mudroom (Floor Plans)
Single-Story Country Home with Flex Room and Covered Veranda (Floor Plans)
Family-friendly Modern Farmhouse with Drive-through 3-car Garage (Floor Plans)
3-Bedroom The Chestnut Hill: Cozy Cottage (Floor Plans)
Double-Story, 5-Bedroom Meydenbauer (Floor Plans)
4-Bedroom Cedar Hollow House (Floor Plans)
Single-Story, 4-Bedroom The Lucy (Floor Plans)
Waterfront Country Craftsman Home with Walk-out Basement (Floor Plans)
4-Bedroom Coastal Contemporary House with Open Concept Living Area (Floor Plans)
4-Bedroom Traditional House with Second-level Bedrooms (Floor Plans)
Home with Main-Level Primary Bedroom and Two Upstairs Bedrooms (Floor Plans)
4-Bedroom Contemporary Craftsman with Large Outdoor Living Room (Floor Plans)
3-Bedroom Hemlock House (Floor Plans)
4-Bedroom The Lennon Craftsman Ranch Home With 3 Bathrooms & Garage Space (Floor Plans)
Single-Story, 2-Bedroom Modern Stilt House (Floor Plans)
Two-Story Traditional Multi-Family House with Loft and Pocket Office - 1812 Sq Ft Per Unit (Floor Pl...
Lakeside Cabin Home With 2 Bedrooms, 2 Bathrooms & Vaulted Ceilings (Floor Plans)
Single-Story, 3-Bedroom The Foxford Rustic Ranch House (Floor Plan)
Single-Story, 3-Bedroom Modern Farmhouse with Dining Room (Floor Plans)