
Specifications
- Area: 1,629 sq. ft.
- Bedrooms: 3-5
- Bathrooms: 2.5-3.5
- Stories: 2
- Garages: 2
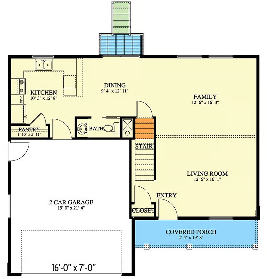
Welcome to the gallery of photos for Two-Story Traditional House with Covered Front Porch – 1629 Sq Ft. The floor plans are shown below:














This traditional-style home offers 1,629 sq. ft. of beautifully designed living space, featuring 3 bedrooms, 2.5 baths, and a 431 sq. ft. 2-car garage.
Blending classic curb appeal with modern functionality, the open layout creates a comfortable flow between living, dining, and kitchen areas—perfect for both everyday living and entertaining.
With its thoughtfully planned design and inviting atmosphere, this home combines timeless architecture with efficient use of space, making it an ideal choice for families seeking charm, comfort, and convenience.
You May Also Like
2-Bedroom Rustic Mountain House with Wrap-Around Porch - 1985 Sq Ft (Floor Plans)
1,253 Sq. Ft. 2-Bed Barndominium-Style House with 1,920 Sq. Ft. of Parking (Floor Plans)
5-Bedroom Chateau Lafayette (Floor Plans)
3-Bedroom Simple Modern Farmhouse with Home Office and Great Curb Appeal (Floor Plans)
Expandable Transitional Farmhouse House with 4-Car Garage (Floor Plans)
3-Bedroom The Radcliffe Traditional Home With Car Garage (Floor Plans)
Double-Story, 3-Bedroom Mountain Craftsman House with Vaulted Great Room (Floor Plans)
2-Bedroom Contemporary Cabin House (Floor Plans)
3-Bedroom Country House with Upstairs Loft (Floor Plans)
3-Bedroom Country Craftsman with 2-Story Cathedral Ceiling - 2062 Sq Ft (Floor Plans)
Single-Story, 4-Bedroom European-Style Home With 4-Car Garage & Motor Court (Floor Plan)
The Prynwood: Small Two-Story Home (Floor Plans)
Cabin House with Main Floor Bedroom and Loft - 949 Sq Ft (Floor Plans)
3-Bedroom Moss Creek House (Floor Plans)
2-Bedroom Ranch for the Sloping Lot - 1621 Sq Ft (Floor Plans)
Double-Story, 3-Bedroom The Oscar Dream Cottage Home With 2-Car Garage (Floor Plans)
2-Story, 3-Bedroom Country Craftsman House With Split Bedroom Design (Floor Plans)
4-Bedroom 2880 Sq Ft Cottage House with Vaulted Ceilings (Floor Plans)
2-Bedroom Exclusive Micro Modern House Open Floor (Floor Plans)
Country Ranch with Optional Walkout Basement (Floor Plans)
Single-Story, 1-Bedroom Barndominium (Floor Plans)
Single-Story, 4-Bedroom Impressive 4,800 Square Foot Prairie Style Home with Porte Cochere (Floor Pl...
Double-Story, 3-Bedroom Cabin Style House With Sundecks (Floor Plans)
3-Bedroom Morning Side E Farmhouse (Floor Plans)
Double-Story, 3-Bedroom The Topeka: Farmhouse With First-Floor Master (Floor Plans)
5-Bedroom Luxury Home with Landscape Overlook (Floor Plans)
3-Bedroom Rugged Craftsman House with Striking Curb Appeal (Floor Plans)
Single-Story, 4-Bedroom Cottage with Main Floor Master (Floor Plan)
Single-Story, 3-Bedroom Cherokee Country House With 2 Bathrooms (Floor Plan)
Single-Story, 4-Bedroom Barndominium with Walkout Basement (Floor Plans)
Mountain Ranch House with Optional Finished Basement Under 2,200 Sq. Ft. (Floor Plans)
4-Bedroom Craftsman with Corner Home Office and a Mixed Material Exterior (Floor Plans)
3-Bedroom Coastal Contemporary House with Courtyard and Guest House - 2134 Sq Ft (Floor Plans)
Single-Story, 3-Bedroom House and an Open Concept Layout (Floor Plans)
Exquisite Contemporary Home with Large Covered Patio (Floor Plans)
3-Bedroom Traditional House with Dual Laundry Under 2000 Sq Ft (Floor Plans)