
Specifications
- Area: 1,465 sq. ft.
- Bedrooms: 1-3
- Bathrooms: 1.5-2.5
- Stories: 1
- Garages: 2
Welcome to the gallery of photos for Mountain Craftsman House With 2-Car Drive-Under Garage – 1465 Sq Ft. The floor plans are shown below:







This inviting Mountain Craftsman–style home is thoughtfully designed with a drive-under garage, making it ideal for a sloping lot. A charming rocking-chair front porch creates a warm welcome while encouraging relaxed outdoor living.
Step inside to a dramatic vaulted foyer that opens into a vaulted great room featuring a cozy fireplace with built-ins, perfect for gathering and entertaining.
The open kitchen and dining area flows seamlessly into the family room and offers direct access to both a grilling deck and a screened porch, extending the living space outdoors.
The private primary suite is a peaceful retreat with a spacious walk-in closet, dual vanities, and a spa-style bath with a separate soaking tub and shower.
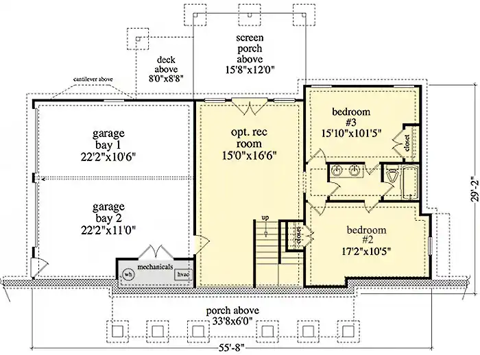
The lower level provides excellent expansion potential, with an optional recreation room, two additional optional bedrooms, a full bath, and a two-bay drive-under garage, delivering flexibility for future growth and lifestyle needs.