
Specifications
- Area: 5,200 sq. ft.
- Bedrooms: 6
- Bathrooms: 4.5
- Stories: 2
- Garages: 2
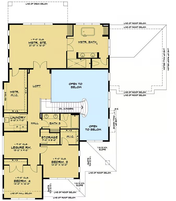
Welcome to the gallery of photos for Contemporary House with Main-level Guest Suite. The floor plans are shown below:











This striking 6-bedroom contemporary home combines varied siding materials with a thoughtful, functional layout. A grand foyer with soaring ceilings welcomes you inside, seamlessly connecting the formal entry with a family foyer, complete with a coat closet and powder bath for convenience.
The main level centers around the rear-facing heart of the home, where the great room projects from the right side and features a boxed-bay window opposite a cozy fireplace.
The dining room, highlighted by a tray ceiling, flows into a spacious kitchen with a large prep island, walk-in pantry, and direct access to an uncovered deckâperfect for entertaining. A main-level guest suite sits privately behind the 2-car garage.
Upstairs, the master suite offers a luxurious retreat with a freestanding tub, oversized walk-in shower, and private dressing area, set apart from three additional bedrooms, a leisure room, and the laundry room.
The lower level houses bedrooms 5 and 6, a recreation room, full bath, and a storage closet, providing versatile space for family, guests, or hobbies.