
Specifications
- Area: 4,445 sq. ft.
- Bedrooms: 5
- Bathrooms: 3.5+
- Stories: 1
- Garages: 3
Welcome to the gallery of photos for Spacious Northwest Home with Lower Level. The floor plans are shown below:




Welcome to this stunning Northwest-inspired home, where architectural elegance meets thoughtful design. Four pairs of stately columns create a dramatic triple-arched entry, offering unforgettable curb appeal and a grand first impression.
Step inside to discover refined details throughout. Tray ceilings elevate both the den and formal dining room, beautifully framing the foyer and its distinctive angled niche. An angled central hallway serves as a dynamic traffic hub, seamlessly connecting the home’s main living spaces with style and flow.
At the heart of the home, the spacious great room features a cozy fireplace flanked by custom built-ins and opens effortlessly to the gourmet kitchen.
A generous island, walk-in pantry, and sunlit breakfast nook make this space perfect for everyday living and entertaining alike. From the nook, step outside to your covered outdoor living room, accented by sturdy columns—ideal for relaxing or hosting gatherings.
The private primary suite offers a true retreat, complete with its own access to the outdoor living area. The luxurious en-suite bath showcases a massive soaking tub and ample space to unwind in comfort.
Two additional bedrooms are thoughtfully positioned on the opposite side of the home, ensuring privacy for family or guests.
The home’s truss roof design features an 8:12 main pitch and a 6:12 secondary pitch, enhancing both durability and architectural appeal.
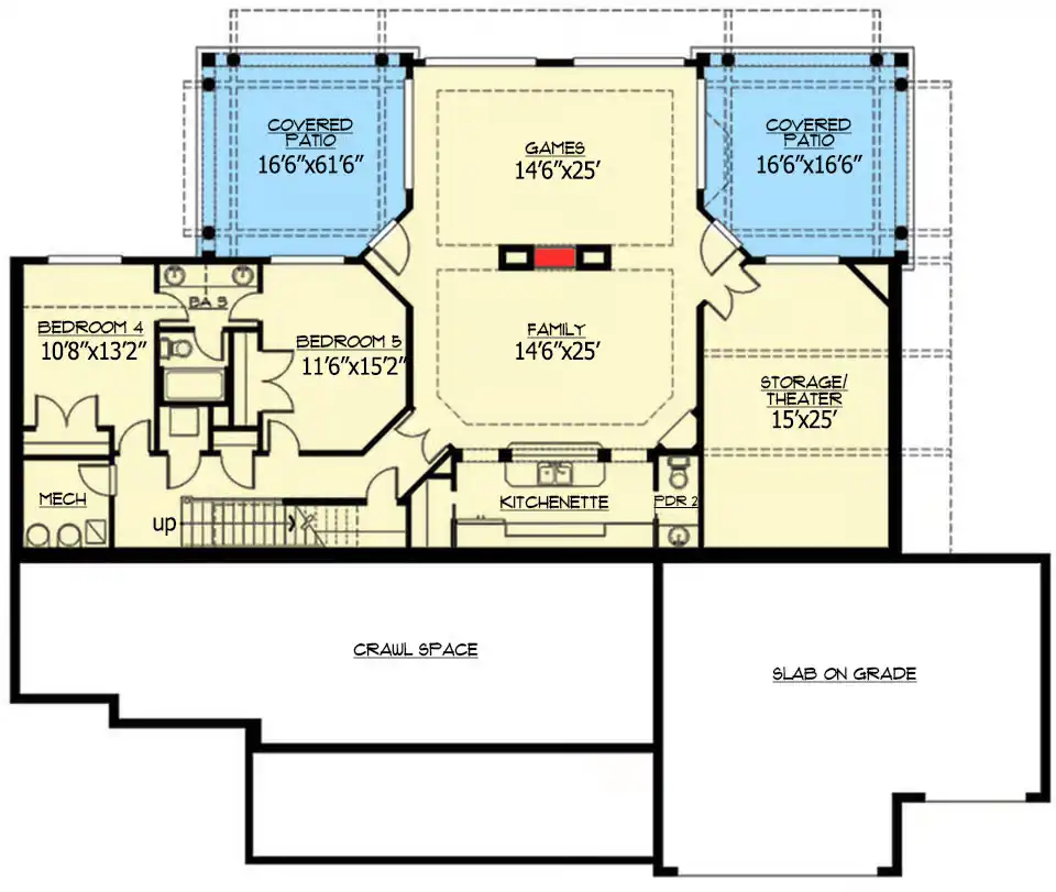
Downstairs, the fully finished lower level transforms into the ultimate entertainment destination. Enjoy two additional bedrooms, a spacious family room, a dedicated games room, and a flexible space perfect for the home theater you’ve always envisioned.
A fully equipped kitchen completes the level, making it an entertainer’s dream and the perfect setting for unforgettable gatherings.